97T – Charmante maison familiale
Sous compromis
Champagnac (15)
6 pièces | 122.32 m²
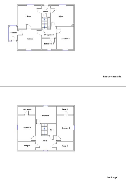
Description des pièces
| RDC | Entrée | 2,30 m² |
| RDC | Séjour | 17,34 m² |
| RDC | Cuisine | 12,95 m² |
| RDC | Véranda | 2,98 m² |
| RDC | Dégagement | 2,73 m² |
| RDC | Salle à manger | 14,75 m² |
| RDC | Chambre 1 | 11,93 m² |
| RDC | Salle d'eau - WC | 4,92 m² |
| 1er étage | Palier | 8 m² |
| 1er étage | Chambre 2 + point d'eau | 14,71 m² |
| 1er étage | Chambre 3 + point d'eau | 14,32 m² |
| 1er étage | Chambre 4 | 9,17 m² |
| 1er étage | WC | 2,40 m² |
| 1er étage | Combles aménageables 1 | 3,30 m² |
| 1er étage | Combles aménageables 2 | 3,50 m² |
| Sous-sol | Sous-sol | 35,25 m² |
| Sous-sol | Chaufferie | 35,50 m² |
| Annexe | Garage | 17,04 m² |
| TOTAL | 213,09 m² |
Située dans un environnement calme, à proximité immédiate des commodités, cette agréable maison lumineuse offre de beaux volumes et un agencement fonctionnel.
Au rez-de-chaussée, vous découvrirez une entrée, un séjour convivial, une cuisine, une véranda baignée de lumière, une salle à manger, ainsi qu’une chambre et une salle d’eau avec WC, permettant une vie de plain-pied confortable.
À l’étage, un palier dessert trois chambres, dont deux équipées d’un point d’eau, un WC indépendant, ainsi que deux espaces grenier aménageables, offrant un beau potentiel d’agrandissement.
La maison dispose également d’un sous-sol total et d’un garage indépendant.
L’ensemble est édifié sur un terrain d’environ 2 533 m², idéal pour profiter d’un cadre verdoyant et paisible.
VISITE VIRTUELLE disponible sur demande.
Référence : 97T
Contact service négociation : negociation.15029@notaires.fr / 06.72.59.35.82
Performances énergétiques