76T – Maison familiale !
Vendu
Champagnac (15)
6 pièces | 125.12 m²
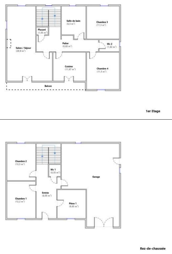
Description des pièces
| RDC | Entrée | 8,05 m² |
| RDC | Chambre 1 | 12,20 m² |
| RDC | Chambre 2 | 13,50 m² |
| RDC | Chambre 3 | 9,65 m² |
| RDC | WC | 0,55 m² |
| RDC | Garage | 39,30 m² |
| 1er étage | Palier | 8,63 m² |
| 1er étage | Placard | 1,05 m² |
| 1er étage | Séjour | 28,90 m² |
| 1er étage | Cuisine | 11,67 m² |
| 1er étage | Chambre 4 | 11,30 m² |
| 1er étage | Chambre 5 | 11,30 m² |
| 1er étage | Salle d'eau | 6,50 m² |
| 1er étage | WC | 3,82 m² |
| TOTAL | 166,42 m² |
Dans un cadre paisible, cette maison offre au rez-de-chaussée une entrée, trois chambres, un WC séparé et un garage. À l’étage, un palier mène à un séjour lumineux avec cheminée et balcon, une cuisine aménagée, deux chambres supplémentaires, une salle d’eau ainsi qu’un WC. L’ensemble repose sur un terrain clos et arboré d’environ 724 m².
VISITE VIRTUELLE disponible sur demande.
Référence : 76T
Contact service négociation : negociation.15029@notaires.fr / 06.72.59.35.82
Performances énergétiques