63T – Maison Auvergnate !
Vendu
Valette (15)
4 pièces | 109.5 m²
Description des pièces
| Maison | 109,50 m² | |
| TOTAL | 109,50 m² |
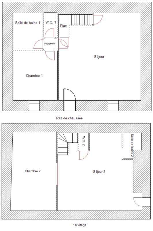
Cette magnifique maison en pierre typiquement Auvergnate, située dans un cadre paisible, offre au rez-de-chaussée un espace de vie avec cuisine équipée, cantou, poêle à bois, four à pain et souillarde, ainsi qu’une chambre, une salle de bain et un WC.
À l’étage, entièrement rénové, se trouvent un second séjour lumineux avec accès au jardin, une chambre, une salle de bain et un WC. Le bien dispose également d’une cave.
Venez profiter de son jardin clos d’environ 884 m² et de sa terrasse orientée plein sud. Un terrain supplémentaire d’environ 1160 m² vient compléter cet ensemble.
VISITE VIRTUELLE disponible sur demande.
Référence : 63T
Contact service négociation : negociation.15029@notaires.fr / 06.72.59.35.82
Performances énergétiques