51T – Maison en pierre

Vendu

Lieu

Champagnac (15)

Pièces

3 pièces | 55.65 m²

Description des pièces

Maison 55,65 m²
TOTAL 55,65 m²

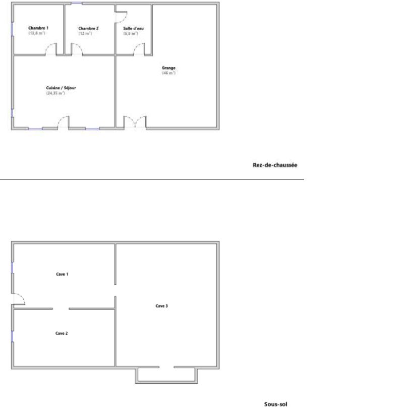
Située dans un environnement calme cette maison en pierre à rénover comporte un séjour avec coin cuisine, un salon, une chambre et une salle d’eau avec WC.
Le bien comprend également une partie grange aménageable et un sous-sol total d’environ 100 m².
Le tout sur un terrain d’environ 462 m² dont 261 m² non attenant. Possibilité d’acquérir du terrain supplémentaire.

VISITE VIRTUELLE disponible sur demande.

Référence : 51T
Contact service négociation : negociation.15029@notaires.fr / 06.72.59.35.82

Performances énergétiques

Classe Énergie
GES