49T – Maison de ville à rénover
Vendu
Bort-Les-Orgues (19)
6 pièces | 122.18 m²
Description des pièces
| Maison | 122,18 m² | |
| TOTAL | 122,18 m² |
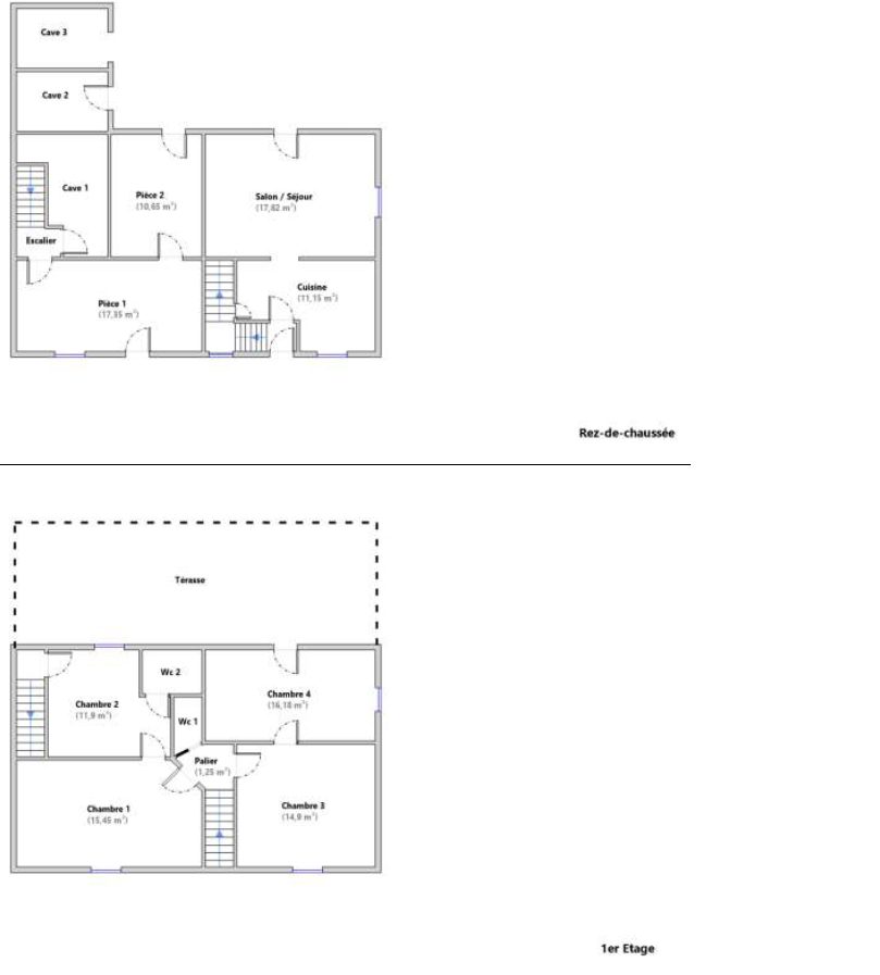
Située en plein cœur de Bort-Les-Orgues, à proximité des commerces et écoles, cette maison à rénover offre un beau potentiel !
Anciennement deux habitations séparées, elle comporte aujourd’hui au rez-de-chaussée une entrée, deux cuisines, deux séjours et un cellier.
A l’étage un palier dessert quatre chambres dont une avec douche, une grande terrasse à la vue dégagée et deux WC.
Le bien comprend également deux parties atelier, un garage ouvert et une cave.
Profitez d’un terrain à l’abri des regards d’environ 250 m².
Double vitrage PVC, volets roulants solaires, chaudière gaz récente.
VISITE VIRTUELLE disponible sur demande.
Référence : 49T
Contact service négociation : negociation.15029@notaires.fr / 06.72.59.35.82
Performances énergétiques