44T – Corp de ferme à rénover
Vendu
Lanobre (15)
5 pièces | 52.55 m²
Description des pièces
| Maison | 52,55 m² | |
| TOTAL | 52,55 m² |
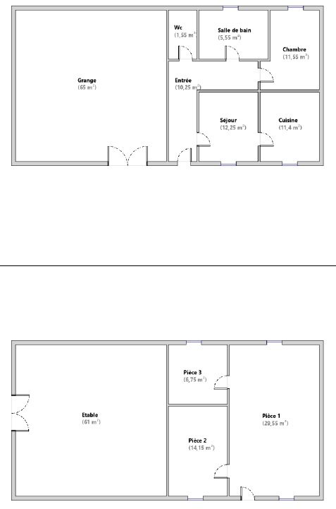
Située sur la commune de Lanobre cette bâtisse en pierre à rénover vous charmera.
Elle présente un beau potentiel d’environ 221 m² au sol.
Elle est composée d’une entrée, d’un séjour, d’une cuisine, d’une salle d’eau et d’une chambre.
La seconde partie se compose d’une pièce principale avec cheminée, d’une chambre et d’une autre pièce à aménager.
L’écurie et la grange vous permettront de laisser libre cours à vos envies.
Un garage indépendant complète ce bien.
Terrain d’environ 5378 m² avec puits et partie constructible.
Certificat d’urbanisme positif à la construction.
VISITE VIRTUELLE disponible sur demande.
Référence : 44T
Contact service négociation : negociation.15029@notaires.fr / 06.72.59.35.82
Performances énergétiques