31T – Jolie maison à Ydes

Vendu

Lieu

Ydes (15)

Pièces

5 pièces | 99.75 m²

Description des pièces

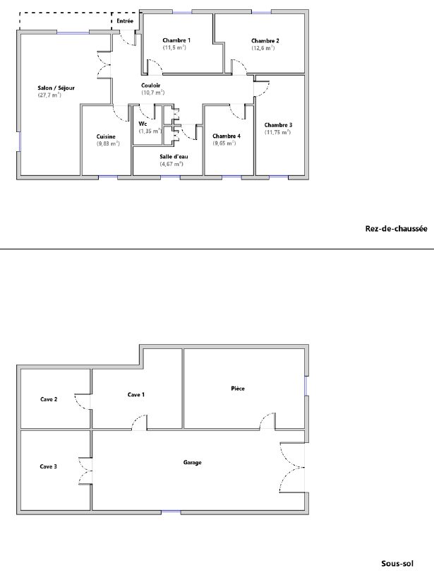
Maison 99,75 m²
TOTAL 99,75 m²

Située dans un environnement calme, cette maison habitable de suite comprend une véranda, un séjour lumineux, une cuisine aménagée et équipée, 4 chambres, une salle d’eau et un WC.
Le bien comporte également un sous-sol total à usage de garage.
Profitez du terrain d’environ 733 m² avec barbecue et terrasse à l’abri des regards.
VISITE VIRTUELLE disponible sur demande.

Référence : 31T
Contact service négociation : negociation.15029@notaires.fr / 06.72.59.35.82

Performances énergétiques

Classe Énergie
GES