2T – Maison à rénover

Vendu

Lieu

Le Monteil (15)

Pièces

7 pièces | 107.10 m²

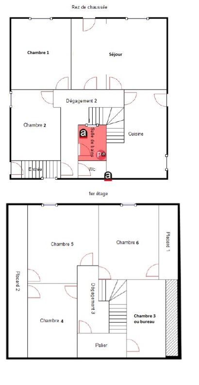
Description des pièces

Maison 134,10 m²
TOTAL 134,10 m²

Située sur la commune du Monteil (15240), venez découvrir cette maison au beau potentiel.
En rez-de-jardin vous trouverez une cuisine, un salon avec cheminée, deux chambres, une salle de bains et un WC.
A l’étage un palier dessert quatre belles pièces qui vous permettront de laisser libre cours à vos envies.
Ce bien comprend également un grand garage et une cave avec source naturelle.
Le tout sur un terrain d’environ 257 m².
VISITE VIRTUELLE disponible sur demande.

Référence : 2T
Contact service négociation : negociation.15029@notaires.fr / 06.72.59.35.82

Performances énergétiques

Classe Énergie
GES