16T – Spécial investisseur !

Vendu

Lieu

Ydes (15)

Pièces

7 pièces | 159.85 m²

Description des pièces

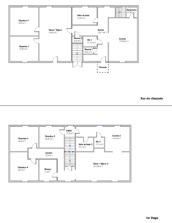
Maison 159,85 m²
TOTAL 159,85 m²

Située dans un environnement calme, cette ancienne école offre un super potentiel pour réaliser un investissement locatif.
Composée de deux appartements cette bâtisse se compose comme suit :
Au rez-de-chaussée un séjour, une cuisine aménagée, une chambre, un bureau, une salle de bain et un WC.
A l’étage un séjour, une cuisine, deux chambres, un bureau, un dressing, une salle de bain et un WC.
Le sous-sol offre un espace garage, cave et chaufferie.
L’ensemble est à rénover entièrement.
Le tout sur un terrain d’environ 508 m² avec préau.
VISITE VIRTUELLE disponible sur demande.

Référence : 16T
Contact service négociation : negociation.15029@notaires.fr / 06.72.59.35.82

Performances énergétiques

Classe Énergie
GES