11T – Ensemble de 2 maisons Auvergnates

Vendu

Lieu

Auzers (15)

Pièces

9 pièces | 167.6 m²

Description des pièces

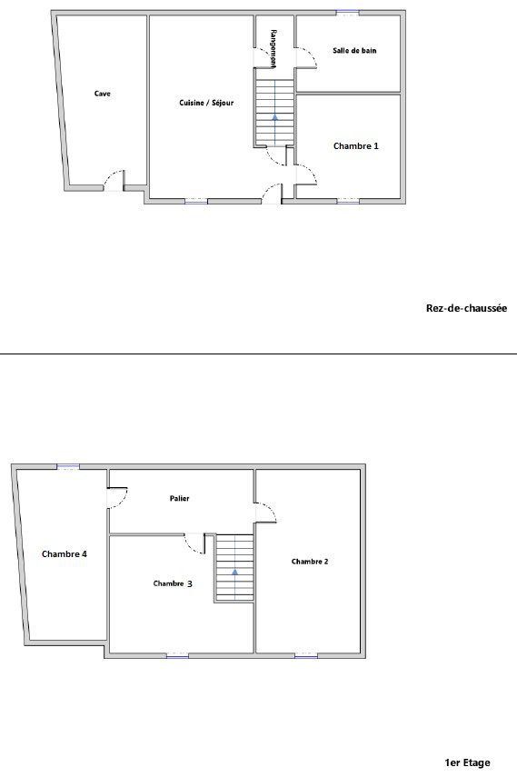
Maison 1 103,38 m²
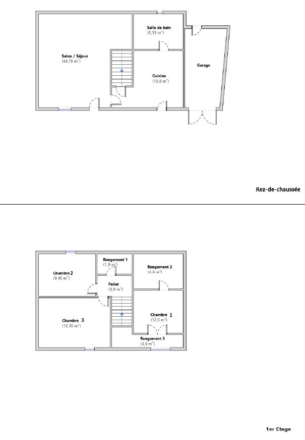
Maison 2 64,25 m²
TOTAL 167,63 m²

Bienvenue à Auzers où vous attendent ces deux charmantes bâtisses en pierre. Située dans un environnement calme, elles deviendront votre havre de paix.

La première maison d’environ 103 m², mitoyenne d’un côté comprend au rez-de-chaussée un séjour avec cantou, une cuisine et une salle d’eau avec WC.
A demi-niveau une chambre avec partie dressing.
A l’étage un palier dessert 2 chambres.

Découvrez sa jolie cour parfaite pour aménager un coin repas afin de profiter des beaux jours et son jardin, un écrin de verdure offrant un espace paisible et accueillant idéal pour des moments de détente en famille ou entre amis.

La deuxième d’environ 64m² comprend au rez-de-chaussée un séjour avec cantou, poêle à bois et cuisine aménagée, une chambre et une salle d’eau avec WC.
A l’étage un palier dessert 3 chambres.

L’ensemble est édifié sur un terrain d’environ 540 m².

Ces biens à rénover reflètent tout le charme architectural de la région.
VISITE VIRTUELLE disponible sur demande.

Référence : 11T
Contact service négociation : negociation.15029@notaires.fr / 06.72.59.35.82

Performances énergétiques

Classe Énergie
GES