104T – Jolie maison
En vente
Bort-Les-Orgues (19)
4 pièces | 68.31 m²
84 800 €
| Prix de vente | 84 800 € |
| Prix au m² | 1 241,40 € /m² |
| Frais d'acte | 7 683 € |
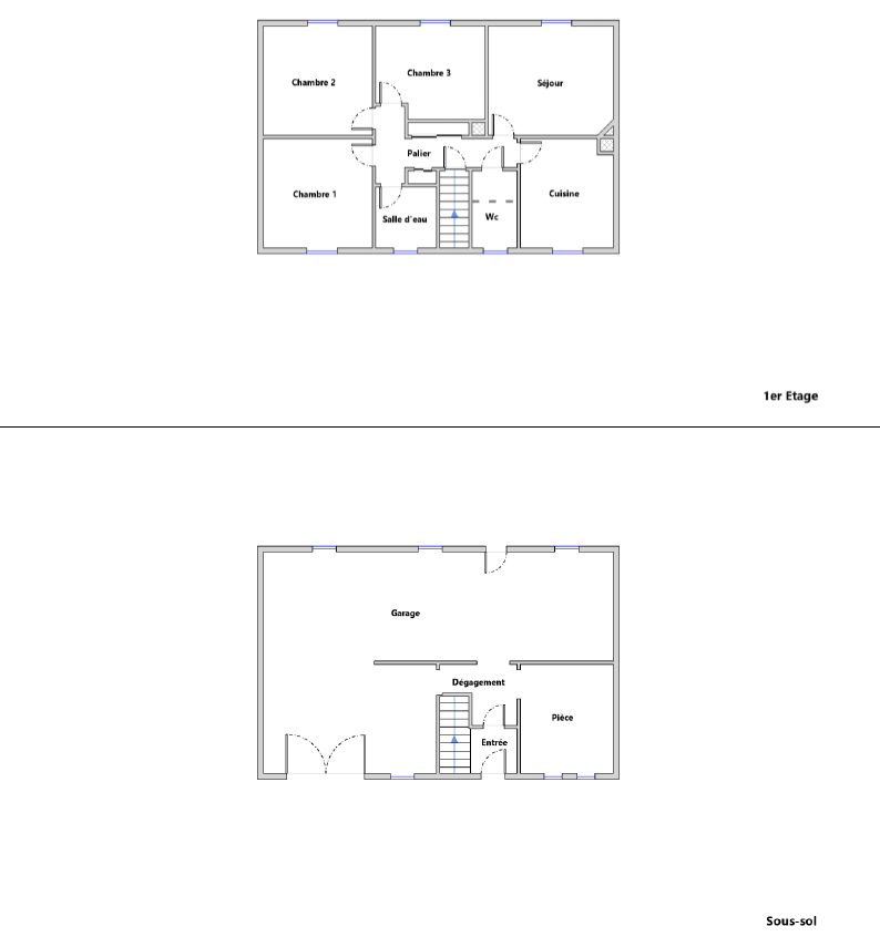
Description des pièces
| RDC | Entrée | 1,20 m² |
| RDC | Dégagement | 3,48 m² |
| RDC | Buanderie | 8,12 m² |
| RDC | Garage | 50,74 m² |
| 1er étage | Séjour | 14,85 m² |
| 1er étage | Cuisine | 9,26 m² |
| 1er étage | Palier | 6,96 m² |
| 1er étage | Chambre 1 | 10,25 m² |
| 1er étage | Chambre 2 | 11,03 m² |
| 1er étage | Chambre 3 | 9,58 m² |
| 1er étage | Salle d'eau | 3,58 m² |
| 1er étage | WC | 1,33 m² |
| TOTAL | 130,38 m² |
Maison lumineuse idéalement située à proximité des commodités.
Édifiée sur un sous-sol complet, elle se compose au rez-de-chaussée d’une entrée, d’une chaufferie, d’une buanderie ainsi que d’un garage.
À l’étage, vous découvrirez un agréable séjour avec cheminée, une cuisine indépendante, trois chambres, une salle d’eau et des WC séparés.
Le tout est implanté sur un terrain d’environ 975 m², offrant un bel espace extérieur.
Visite virtuelle disponible sur demande.
Référence : 104T
Contact service négociation : negociation.15029@notaires.fr / 06.72.59.35.82
Performances énergétiques