100T – Bâtisse de caractère !
En vente
Bort-Les-Orgues (19)
13 pièces | 243.98 m²
265 000 €
| Prix de vente | 265 000 € |
| Prix au m² | 1 086,15 € /m² |
| Frais d'acte | 20 977 € |
Description des pièces
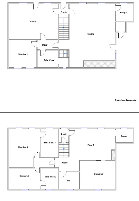
| Maison 1 | Maison 1 | 243,98 m² |
| RDC | Entrée | 2,57 m² |
| RDC | Séjour-cuisine | 56,10 m² |
| RDC | Rangement 1 | 8,75 m² |
| RDC | Chambre 1 | 14,23 m² |
| RDC | Dégagement 1 | 2,60 m² |
| RDC | Pièce 1 | 32,75 m² |
| RDC | Salle d'eau - WC | 7,78 m² |
| 1er étage | Palier | 5,62 m² |
| 1er étage | Pièce 2 | 33,87 m² |
| 1er étage | Bureau | 5,75 m² |
| 1er étage | Chambre 2 | 13,35 m² |
| 1er étage | Suite parentale (chambre 3 + salle d'eau + WC) | 20,82 m² |
| 1er étage | Suite parentale (chambre 4 + salle d'eau + WC) | 28,29 m² |
| 1er étage | WC | 5,18 m² |
| 1er étage | Dégagement 2 | 2,23 m² |
| 2ème étage | Combles aménageables | 131,71 m² |
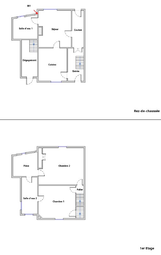
| Maison 2 | Maison 2 | 96,96 m² |
| RDC | Entrée | 5,96 m² |
| RDC | Dégagement | 3,20 m² |
| RDC | Séjour | 16,77 m² |
| RDC | Cuisine | 12,88 m² |
| RDC | Salle d'eau | 3 m² |
| 1er étage | Palier | 0,73 m² |
| 1er étage | Chambre 1 | 19,64 m² |
| 1er étage | Chambre 2 | 18,11 m² |
| 1er étage | Pièce | 10,40 m² |
| 1er étage | Salle de bains - WC | 5,27 m² |
| 2ème étage | Combles aménageables | 48,60 m² |
| Annexe | Grange | 136 m² |
| TOTAL | 993,10 m² |
Découvrez cet ensemble immobilier composé de deux maisons et d’une grange, offrant de nombreuses possibilités d’aménagement.
La maison principale, entièrement rénovée et alliant charme et fonctionnalité, présente de beaux volumes. Elle se compose :
Au rez-de-chaussée : Une entrée, un lumineux séjour avec cuisine ouverte et cantou, un bureau, deux chambres, une salle d’eau, une vaste pièce anciennement à usage commercial ainsi qu’une cave.
À l’étage : Un palier dessert un salon, un bureau, deux suites parentales spacieuses, une chambre supplémentaire et un WC indépendant. Des combles aménageables viennent compléter ce bien et offrent un potentiel d’agrandissement supplémentaire.
La seconde maison à rénover, parfaite pour un projet locatif, une maison d’amis ou un logement indépendant. Elle comprend :
Au rez-de-chaussée : Une entrée, un séjour, une cuisine et une salle d’eau avec WC. À l’étage : Deux chambres, une pièce supplémentaire ainsi qu’une salle de bains avec WC. Combles aménageables.
En annexe une grange sur deux niveaux, offrant de multiples possibilités : stockage, atelier, aménagement complémentaire selon vos besoins.
Un jardin d’environ 105 m² vient agrémenter ce bien et permet de profiter d’un agréable espace extérieur avec vue sur les Orgues.
VISITE VIRTUELLE disponible sur demande.
Référence : 100T
Contact service négociation : negociation.15029@notaires.fr / 06.72.59.35.82
Performances énergétiques